全钢质低碳基坑支护体系工程应用与碳排放分析

    Engineering application and carbon emission analysis of all-steel low-carbon support system of foundation pits

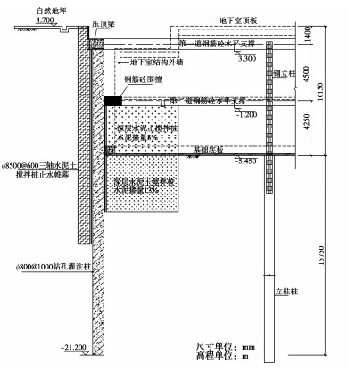
    • 摘要: 基于深基坑工程碳排放生命周期理论,以上海某绿色科技示范楼项目为背景,针对PC工法组合钢管桩围护结合预应力型钢组合支撑构成的全钢质低碳支护方案和混凝土常规支护方案的基坑生命周期碳排放进行定量计算与对比分析。研究结果表明:全钢质支护体系的基坑生命周期总碳排放量为混凝土支护体系的21%,通过增加重复使用次数、选择低能耗机械、缩短运输距离等措施,可进一步减少全钢质支护体系的碳排放量。

       

      Abstract: Based on the life cycle theory of carbon emission of deep foundation pit engineering, a green technology demonstration building project in Shanghai is taken as the background, and the carbon emissions of the foundation pit during life cycle of the all-steel low-carbon support scheme composed of PC method combined steel pipe pile enclosure and prestressed steel composite support and the conventional concrete support scheme are quantitatively calculates and compared. The research results show that the total carbon emissions of the foundation pit during life cycle of the all-steel support system is 21% of that of the concrete support system. The carbon emissions of the all-steel support system can be further reduced by increasing the number of reuses, selecting low-energy consumption machinery, and shortening the transportation distance, etc.

       

    /

    返回文章
    返回