兰州特殊红砂岩地层深基坑支护监测与数值模拟分析

    Monitoring and numerical simulation analysis of support structures of deep foundation pit in special red sandstone stratum in Lanzhou

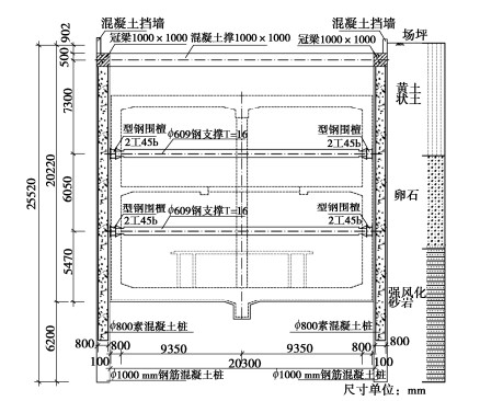
    • 摘要: 兰州地铁开挖过程中不同场地遇到的红砂岩地层崩解性差异很大,对不同类型红砂岩深基坑支护方法的研究亟待展开。以典型的红砂岩崩解性车站深基坑为例,通过对场地特殊的工程地质及水文条件分析,提出该类型红砂岩深基坑适合采用咬合桩加内支撑的支护结构。分析车站基坑施工过程中支护结构及周围环境变形的监测数据,对开挖过程建立了Midas GTS数值模型,对比分析了监测值与模拟值。结果表明各项目的变形都在安全控制范围内,说明了该站基坑的支护结构方案合理有效,研究结果可指导兰州地铁类似的红砂岩深基坑支护设计。

       

      Abstract: There are great differences in the disintegration of red sandstone strata encountered in different sites during the excavation of Lanzhou Metro, and the researches on the support methods for deep foundation pits in different types of red sandstone are urgently needed. Taking the deep foundation pit of a station in disintegrated red sandstone as an example, through the analysis of the special engineering geological and hydrological conditions of the site, it is proposed that the support structures of interlocking piles and internal supports are suitable. The monitoring data of the support structures and the deformation of the surrounding environment during the construction of foundation pit are analyzed. The numerical model Midas GTS is established for the excavation process, and the monitoring and simulated values are compared and analyzed. The results show that the deformation of each item is within the scope of safety control, indicating that the scheme of support structures for the foundation pit of the station is reasonable and effective. The research results may guide the support design of deep foundation pits in similar red sandstone in Lanzhou Metro.

       

    /

    返回文章
    返回