空间效应下长条形基坑分段地下连续墙支护特性研究

    Supporting characteristics of segmental diaphragm walls in strip foundation pits under spatial effects

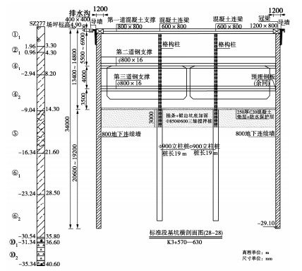
    • 摘要: 依托杭州市文一西路隧道基坑工程,采用有限元分析方法探究了长条形基坑中分段地下连续墙的支护特性及效果,结果表明:不同区段地下连续墙水平变形均呈鼓肚型分布规律,随地下连续墙埋深增大最大水平变形减小;不同区段地下连续墙附近地表土体沉降规律基本一致,呈凹型曲线分布,地下连续墙埋深仅影响沉降数值,并不影响其分布规律;在长条形基坑长边设置不同埋深的分段地下连续墙后,地表沉降及地下连续墙水平变形仍能够满足工程安全要求,具有一定经济效益。

       

      Abstract: Based on the foundation pit project of West Wenyi Road Tunnel in Hangzhou, the supporting characteristics and effects of segmental diaphragm walls in strip foundation pits are investigated by using the finite element analysis method. The results show that the horizontal deformation of the diaphragm walls in different sections exhibits a drum belly distribution law, and the maximum horizontal deformation decreases with the increase of the buried depth of the diaphragm walls. The settlement law of the surface soil near the diaphragm walls in different sections is basically the same, with a concave curve distribution. The buried depth of the diaphragm walls only affects the settlement value, but does not affect its distribution law. If the segmental diaphragm walls with different depths are set at the long side of the strip foundation pit, the surface settlement and horizontal deformation of the diaphragm walls can still meet the engineering safety requirements and have certain economic benefits.

       

    /

    返回文章
    返回