上覆新填土软土深基坑开挖变形控制数值模拟

    Numerical simulation of deformation control during excavation of deep foundation pit in soft soil with newly filled soil

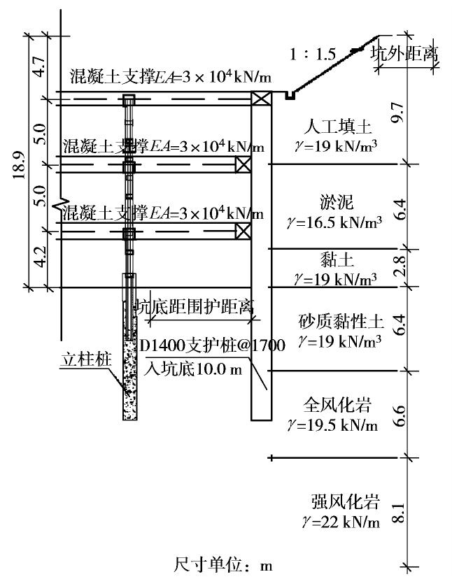
    • 摘要: 当存在上覆新填土条件下,深基坑开挖导致的变形规律值得重视。针对深圳某填土区线型深基坑开展有限元模拟,分析了不同围护桩插入比以及加固条件下坑底回弹变形和地表沉降的分布规律。结果表明,在土质软弱的新填土沿海软弱土地区,增加围护桩插入比虽能显著减少坑外地表沉降,但对于控制坑底隆起效果不佳;坑底土体被动区搅拌桩加固可显著减少坑底隆起和地表沉降,加固9 m深度时,坑底隆起和地表沉降可减少75%以上。

       

      Abstract: Under the overburden of newly filled soil, the deformation law of ground caused by excavation of foundation pits needs attention. Based on a linear deep foundation pit in the coastal Shenzhen-Hong Kong cooperation zone, the influences of different reinforcement plans and insertion ratios of retaining piles on the rebound deformation and surface settlement of the foundation pit are investigated through the finite element simulation. The conclusions can be drawn as follows: in the coastal soft soil areas with poor soil quality and newly filled soil, as the resistance to deformation in the passive areas is poor, the relevant measures should be taken to reduce the bottom uplift of pit and surface settlement deformation. Increasing the insertion ratio of retaining piles is not a useful way to control the uplift of pit bottom, but can significantly reduce the surface settlement outside the pit. Using the mixing piles to reinforce the passive areas of soil at the bottom of the pit can significantly reduce the uplift of the pit bottom and the surface settlement, and when the depth of reinforcement is 9 m, the uplift and surface settlement can be reduced by more than 75%.

       

    /

    返回文章
    返回