采用不同中柱的单层地铁地下车站结构抗震性能对比研究

    Seismic performance of single-story subway station structures with different types of intermediate columns

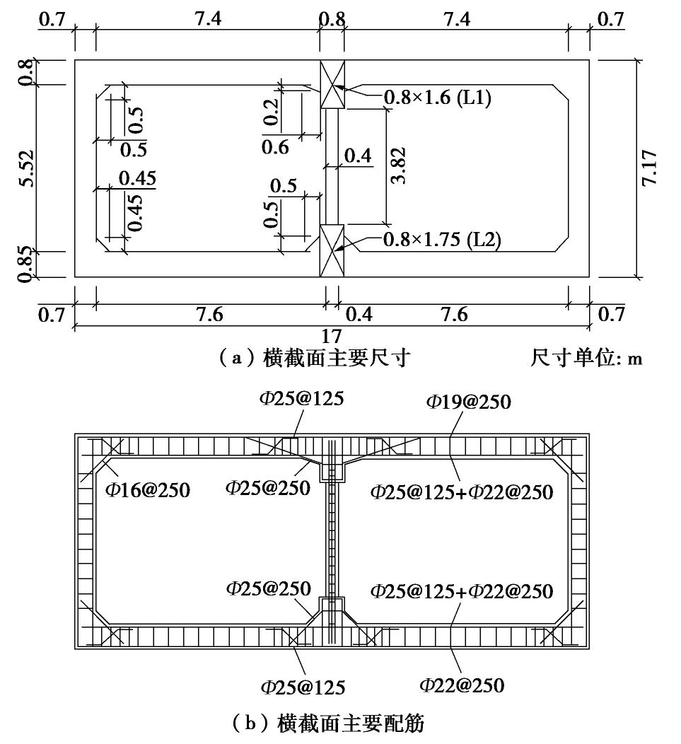
    • 摘要: 针对地铁地下车站结构中柱这一抗震薄弱构件,分别采用方形钢筋混凝土柱、圆形钢筋混凝土柱,以及本文新提出的带快速连接装置的预制钢管混凝土柱,建立了土-地下结构非线性静动力耦合相互作用的三维有限元分析模型,对比分析了采用不同中柱设计对车站主体结构地震反应特性的影响规律。结果表明:与方形中柱相比,等截面惯性矩的圆形中柱在地震中受到的损伤较小,具有更好的抗震性能。采用新提出的带快速连接装置的预制钢管混凝土柱可以有效地保证结构中柱在强地震中不受严重损伤,且具有在震后能快速更换的特点。

       

      Abstract: In view of the seismic weak component of the single frame type underground subway station structure, using the rectangular reinforced concrete columns, the circular reinforced concrete columns, and the proposed precast concrete-filled steel tube (CFST) columns with quick connection devices, a three-dimensional global time-domain finite element analysis model for the nonlinear statically and dynamically coupled soil-main structure interaction is established. The influence rules of the interlayer displacement angle, seismic damage and dynamic stress response of the main structures of the subway station are compared and analyzed when different types of intermediate columns are adopted. The results show that compared with the rectangular columns, the circular columns with equal moment of inertia suffer less damage in earthquakes, and have better seismic performance. The proposed precast CFST columns with quick connection devices can effectively ensure that the columns in the structures will not be seriously damaged in strong earthquakes. They can be quickly replaced after earthquakes so as to improve the overall seismic performance of the underground subway station structure.

       

    /

    返回文章
    返回